办公室装修施工视频
办公室装修施工视频
无无尘车间,无尘室,洁净室,无菌室,无...
查看详情 >
厂房设计装修视频
厂房设计装修视频
无尘车间,无尘室,洁净室,无菌室,无菌车...
查看详情 >
厂房装修施工视频
厂房装修施工视频
无尘车间,无尘室,洁净室,无菌室,无菌...
查看详情 >
厂房装修施工视频
厂房装修施工视频
无尘车间,无尘室,洁净室,无菌室,无菌...
查看详情 >
无尘车间装修施工视频
无尘车间装修施工视频
无尘车间装修效果图 无尘车间装修...
查看详情 >
无尘车间装修施工视频
无尘车间装修施工视频
无尘车间装修效果图 无尘车间装修...
查看详情 >
无尘车间装修施工视频
无尘车间装修施工视频
无尘车间装修效果图 无尘车间装修...
查看详情 >
半集中式洁净空调系统
半集中式洁净空调系统
半集中式洁净空调系统 分散式洁净空调...
查看详情 >
分散式洁净空调系统
分散式洁净空调系统
半集中式洁净空调系统 分散式洁净空调...
查看详情 >
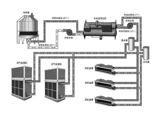
集中式洁净空调系统
集中式洁净空调系统
半集中式洁净空调系统 分散式洁净空调...
查看详情 >